Eastover Cottage – The Main Living Area
My last post featured the exterior of my parents’ new home – the Southern Living Eastover Cottage plan. Now, let’s take a look inside!
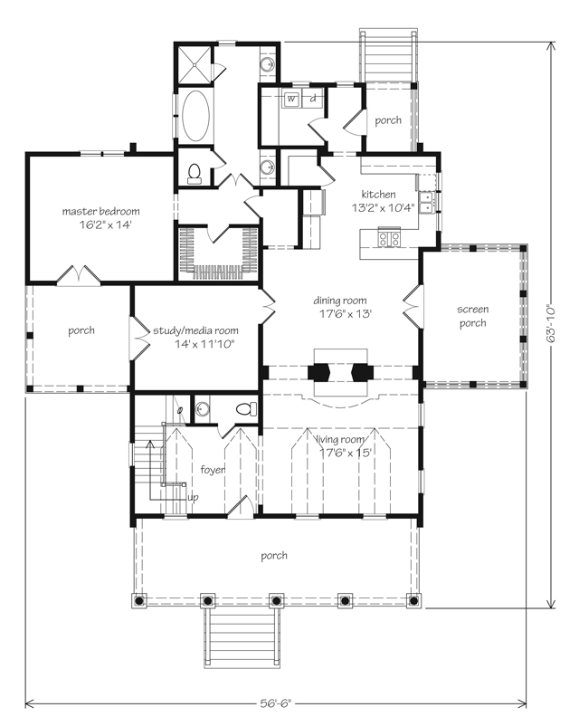
They kept pretty close to the original floor plan with the exception of the back part of the house. They did remove the wall between the Foyer and Living Room so it is all one big space. The screen porch is now a sunroom.
The master bathroom has a walk-in closet where it shows the toilet. There is no tub, so there is a large shower in it’s place. The toilet is on the far end where it shows the shower.
The Laundry Room and Back Hallway wall is even with the rear Master Bathroom wall. The garage is where the back porch is drawn with the bonus room staircase there as well.
Upstairs, there is a jack-and-jill bath connecting the 2 bedrooms. They each have a walk-in closet where the doors to the bathroom are drawn below. There is also access to the attic spaces.
The staircase is just to the left as you come in the front door.
That is open to the Great Room. The door to the powder room is under the staircase.
The floors are Brazilian Koa.
The Powder Room is small and near impossible to photograph, so here’s a quick glimpse.
Instead of a fireplace, they have built-ins on either side of the wall between the dining room doorways. That wall is painted Sherwin Williams Copen Blue (SW 0068).
All the glass cabinets have a bamboo design.
On the other side of that wall is a similar cabinet in the dining room with storage for table leaves.
On one side of the Dining Room is the Office. . .
. . . and the Sunroom is on the other side.
The Office has french doors to the side porch and a small access door to storage under the main staircase.
Looking from the Office across the Dining Room into the Sunroom.
The Sunroom also has french doors off the dining room.
This door leads to a small patio off the driveway.
Next, we’ll take a look at the kitchen!



















Hi there,
Is there any way we could see the actual plans your parents used? These are the plans I have chosen for my house and I really like some of the things you all have done.
Thanks so much,
Lindsay
The plans are available from Southern Living. The only significant changes were the addition of the garage and the back hall/laundry room area which I have described in the related posts and comments. Those changes were just drawn onto the original plans by the builder prior to construction.